Skip To Content

901 Roosevelt Ave

Madison, TN 37115
  • $899,900
  • STATUS: Active
  • ON SITE: 27 Days
  • MLS #: RTC3030970
UPDATED: 77 min ago
$899,900
  • 0
    BEDS
  • 1.01
    ACRES
  • 0
    BATHS
  • 0
    1/2 BATHS
Type:
Vacant Land / Lots
County:

School Information

Elementary School:
Middle School:

Description

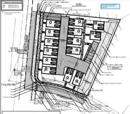
SVN Accel Commercial Real Estate is thrilled to present a fully entitled, shovel-ready opportunity to develop 14 single-family homes in the coveted Nashville suburbs - Madison, Tn. Ideally positioned on a spacious 1.01-acre site, this property offers approved grading permits and comprehensive architectural, civil, and engineering plans, allowing for immediate ground-breaking. With existing water, sewer, and electrical services on site, the property minimizes timelines and risks. The SP: Specific Plan District zoning not only allows for short-term rental use but also offers flexibility for additional commercial applications, enhancing the property's income potential. This unparalleled opportunity is perfectly poised for residential investment and promises a seamless path to development success. All are STR eligible.

Monthly Payment Calculator



Realtracs Solutions logoProperties marked with the IDX logo are provided courtesy of the RealTracs Internet Data Exchange Program. Some or all of the listings may not belong to the firm whose website is being visited (The Kelton Group | EXP Realty, (615) 200-6260). IDX information © 2025 MTRMLS, Inc. Information is believed to be accurate but not guaranteed by the MLS or The Kelton Group | EXP Realty. IDX information is provided exclusively for consumers' personal, non-commercial use and may not be used for any purpose other than to identify prospective properties consumers may be interested in purchasing. Data last updated 2025-11-17T10:06:20.433.

Based on information submitted to the MLS GRID as of 2025-11-17T10:06:20.433. All data is obtained from various sources and may not have been verified by broker or MLS GRID. Supplied Open House Information is subject to change without notice. All information should be independently reviewed and verified for accuracy. Properties may or may not be listed by the office/agent presenting the information.
Click here for MLS GRID DMCA Notice
www.keltonrealestate.com/homes/169072440
Print Image

901 Roosevelt Ave Madison, TN 37115

  • Price: $899,900
  • Status: Active
  • On Site: 27 Days
  • Updated: 77 min ago
  • MLS #: RTC3030970
0
Beds
0
Baths
0
½ Baths
1.01
Acres
Neighborhood:
Cottages At 901 Roosevelt
County:
Davidson
Elementary School:
Amqui K-8 School
Middle School:
Amqui K-8 School
High School:
Hunters Lane Comp High School
Property Description
SVN Accel Commercial Real Estate is thrilled to present a fully entitled, shovel-ready opportunity to develop 14 single-family homes in the coveted Nashville suburbs - Madison, Tn. Ideally positioned on a spacious 1.01-acre site, this property offers approved grading permits and comprehensive architectural, civil, and engineering plans, allowing for immediate ground-breaking. With existing water, sewer, and electrical services on site, the property minimizes timelines and risks. The SP: Specific Plan District zoning not only allows for short-term rental use but also offers flexibility for additional commercial applications, enhancing the property's income potential. This unparalleled opportunity is perfectly poised for residential investment and promises a seamless path to development success. All are STR eligible.
Exterior Features

Lot Features Cleared Lot Size Dimensions 43995 Parking Total 0 Road Frontage Type City Street Road Surface Type ConcretePaved Topography Cleared View YN No Waterfront YN No

Interior Features

Cooling YN No Heating YN No

Property Features

Association YN No Building Area Total 0 Inclusions Land Only Lot Size Area 1.01 Pool Private YN No Property Attached YN No Senior Community YN No Special Listing Conditions Standard Tax Annual Amount 325 Zoning SP

Realtracs Solutions logo Offered by SVN Accel Commercial Real Estate: . Copyright 2025 RealTracs, Inc. Information Is Believed To Be Accurate But Not Guaranteed. Listings courtesy of Realtracs MLS as distributed by MLS GRID.


Realtracs Solutions logoProperties marked with the IDX logo are provided courtesy of the RealTracs Internet Data Exchange Program. Some or all of the listings may not belong to the firm whose website is being visited (The Kelton Group | EXP Realty, (615) 200-6260). IDX information © 2025 MTRMLS, Inc. Information is believed to be accurate but not guaranteed by the MLS or The Kelton Group | EXP Realty. IDX information is provided exclusively for consumers' personal, non-commercial use and may not be used for any purpose other than to identify prospective properties consumers may be interested in purchasing. Data last updated 2025-11-17T10:06:20.433.

Based on information submitted to the MLS GRID as of 2025-11-17T10:06:20.433. All data is obtained from various sources and may not have been verified by broker or MLS GRID. Supplied Open House Information is subject to change without notice. All information should be independently reviewed and verified for accuracy. Properties may or may not be listed by the office/agent presenting the information.
Click here for MLS GRID DMCA Notice
 
https://bt-photos.global.ssl.fastly.net/nashville/1280_boomver_1_RTC3030970-1.jpg https://bt-photos.global.ssl.fastly.net/nashville/1280_boomver_1_RTC3030970-1.jpg https://bt-photos.global.ssl.fastly.net/nashville/1280_boomver_1_RTC3030970-1.jpg
Logo
The Kelton Group | EXP Realty
3401 Mallory Lane
Franklin TN, 37067